| Standardfahrwerk | Telefahrwerk | ||
| Abstand Löffel Planierschild, kurzer Löffelstiel | 452 mm | 362 mm | |
| Abstand Löffel Planierschild, langer Löffelstiel | 385 mm | 295 mm | |
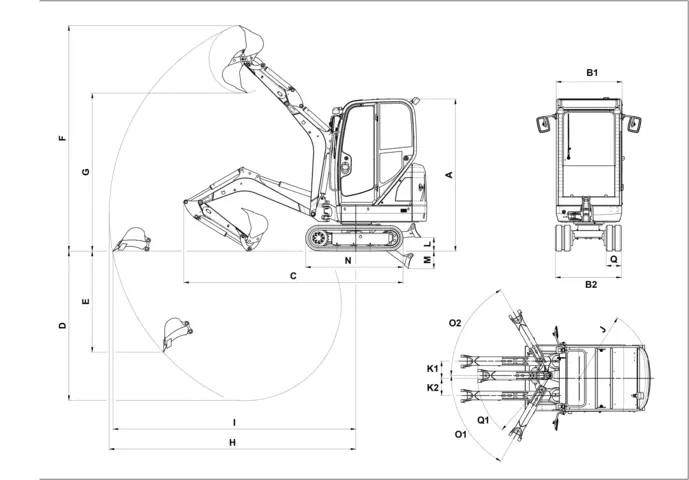
| A | Höhe Canopy | 2.285 mm | 2.317 mm |
| B1 | Breite Oberwagen | 990 mm | 990 mm |
| B2 | Breite Fahrwerk | 990 mm | 1.298 mm |
| C | Transportlänge kurzer Löffelstiel | 3.644 mm | 3.648 mm |
| C | Transportlänge langer Löffelstiel | 3.607 mm | 3.606 mm |
| D | Grabtiefe max., kurzer Löffelstiel | 2.242 mm | 2.202 mm |
| D | Grabtiefe max., langer Löffelstiel | 2.413 mm | 2.372 mm |
| E | Einstechtiefe max., kurzer Löffelstiel | 1.642 mm | 1.605 mm |
| E | Einstechtiefe max., langer Löffelstiel | 1.802 mm | 1.764 mm |
| F | Einstechhöhe max., kurzer Löffelstiel | 3.387 mm | 3.408 mm |
| F | Einstechhöhe max., langer Löffelstiel | 3.508 mm | 3.529 mm |
| G | Ausschütthöhe max., kurzer Löffelstiel | 2.371 mm | 2.396 mm |
| G | Ausschütthöhe max., langer Löffelstiel | 2.493 mm | 2.518 mm |
| H | Grabradius max., kurzer Löffelstiel | 3.700 mm | 3.700 mm |
| H | Grabradius max., langer Löffelstiel | 3.861 mm | 3.860 mm |
| I | Reichweite am Boden max., kurzer Löffelstiel | 3.648 mm | 3.642 mm |
| I | Reichweite am Boden max., langer Löffelstiel | 3.811 mm | 3.806 mm |
| J | Heckschwenkradius | 1.075 mm | 1.075 mm |
| K1 | Auslegerversetzung max. (auf Mitte Löffel rechte Seite) | 432 mm | 432 mm |
| K2 | Auslegerversetzung max. (auf Mitte Löffel linke Seite) | 287 mm | 287 mm |
| N | Länge Laufwerk | 1.462 mm | 1.462 mm |
| O1 | Schwenkwinkel max. (Armsystem nach links) | 73 ° | 73 ° |
| O2 | Schwenkwinkel max. (Armsystem nach rechts) | 49 ° | 49 ° |
| Q1 | Auslegerschwenkradius links | 1.195 ° | 1.195 ° |